建売詳細
江波分譲住宅A棟
価格3060万円
土地 272.05㎡(82.29坪)
| 所在地 | 丹生郡越前町江波89-54-1 | ||
| 交通 | |||
| 建物面積 | 104.43㎡(31.59坪) | 築年月 | 2026年8月予定 |
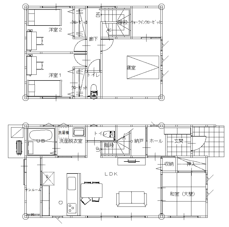
| 間取内容 | 4SLDK | ||
| 建物構造 | 取引態様 | 売主 | |
| 地目 | 宅地 | 用途地域 | 第一種住居専用地域 |
| 土地面積 | 272.05㎡(82.29坪) | ||
| 建ぺい率 | 60% | 容積率 | 200% |
| 土地権利 | 所有権 | 接道状況 | 一方 |
| 接道方向1 | 東側 | 接道間口1 | 6.0m |
| 接道種別1 | 公道 | 接道幅員1 | 10.7m |
| 校区 | 宮崎小学校・宮崎中学校 | ||
| 設備・条件 | 長期優良住宅 床暖房 エアコン2台 家具・カーテン付き | ||
| 物件番号 | 江波分譲住宅A棟 | 掲載期限日 | 2026年12月31日 |
| 自社物 | 自社物 | 状態 | 売出中 |
《 おすすめのポイント 》
長期優良住宅・床暖房・エアコン2台・家具・カーテン付き
《 周辺の施設・環境 》
《 物件地図 》
-売主物件には仲介手数料はかかりません-
建築条件付の土地は、土地売買契約後3ヶ月以内に当社との建築請負契約を締結していただく事を条件として販売いたします。この期間内に当社と建築請負契約が成立しなかった場合は、土地売買契約は白紙となり当社受領した金銭は全額無条件で返還し、土地購入者はその土地を原状回復の上当社に引き渡して頂きます。市街化調整区域内の土地は宅地の造成および建物の建築はできません。
お問い合わせフォーム



















